Quadrilocale in vendita

Scorzè, Viale Kennedy
€ 330.000
4 locali 4 locali
141 Mq 141 Mq
2 bagni 2 bagni

Quadrilocale in vendita

Scorzè, Viale Kennedy

Descrizione annuncio

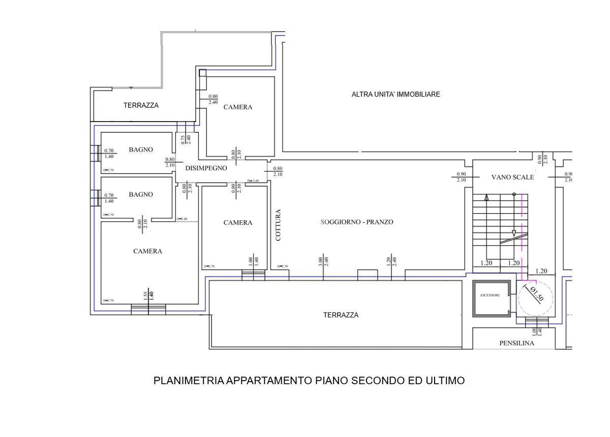
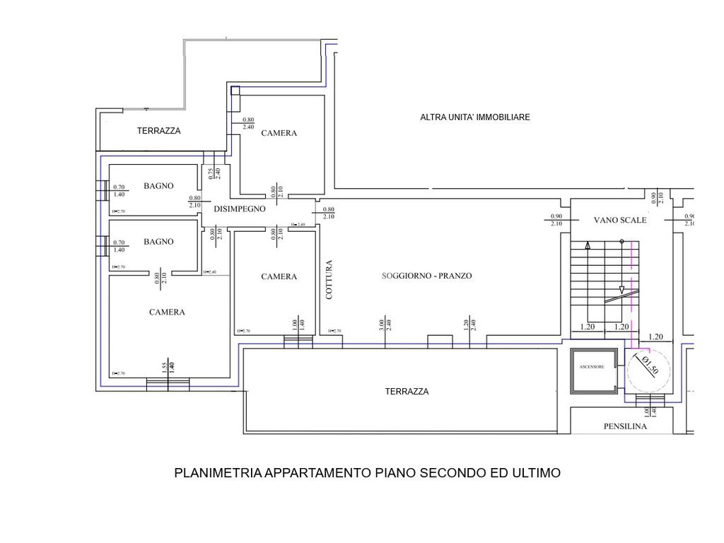
Nel cuore di Scorzè, a due passi dai principali servizi, proponiamo in vendita attico tricamere di nuova costruzione sito al secondo e ultimo piano. L'immobile sarà costruito secondo i più recenti criteri di costruzione e sarà così composto: soggiorno-cucina in open space di oltre 40 mq con accesso diretto ad ampio terrazzo abitabile di 32 mq, dispegno, 3 camere da letto e 2 bagni entrambi finestrati e un secondo terrazzo con accesso da disimpegno e camera . Conclude la proprietà al piano terra garage singolo. Possibilià di scelta finiture interne. Consegna prevista fine 2026. Ulteriori info in agenzia.

Mostra tutto

Nelle vicinanze

Trasporto pubblico Trasporto pubblico
Scorzè Ceccariolo
Scorzè Ceccariolo
130 m
Trasporto pubblico
270 m
Ricariche auto elettriche Ricariche auto elettriche
Moniego Centro | EnelX
2,2 Km
Scuole Scuole
Scuole
70 m
Farmacia Farmacia
Farmacia San Benedetto
450 m
Farmacia San Giovanni
2,9 Km
Supermercati Supermercati
Eurospesa
480 m
Supermercati
2,9 Km
Negozi Negozi
Bertoldo Confezioni
570 m
Pasaoli Verde
1,3 Km
Bar Bar
Prince Pub
2,9 Km
Ristoranti Ristoranti
Mydo's Ristorante Pizzeria
680 m
Locanda San Ferdinando
1,0 Km
Ristorante Perbacco
1,3 Km
Ristorante Al Grion
2,6 Km
Agriturismo al Capitellon
2,9 Km
Mostra tutto

Caratteristiche

Rif.:
61106565
Piano:
2 di 2 con ascensore (ultimo Piano)
Posti auto:
1
Terrazzi:
2
Camere da letto:
3
Arredamento:
Assente
Mostra tutto
Prezzo Prezzo
€ 330.000
Rata mutuo Rata mutuo
€ 1.566 / mese
Proponi il tuo prezzoProponi il tuo prezzo

Classe Energetica

A4
A4
A4
A4
A4
A4
A4
A4
A4
EP invernale del fabbricato:
EP estiva del fabbricato:
Anno di costruzione:
2026
Riscaldamento:
Autonomo
Tipo impianto:
A pavimento
Tipo alimentazione:
Altro

Ti interessa visionare l'immobile?

Fissa un appuntamento  Fissa un appuntamento

Richiedi informazioni

Clicca su Leggi per aprire l'informativa
* Questi campi sono obbligatori

Calcola il tuo mutuo

Semplice e senza impegno
Anticipo

( % )
Mutuo

( % )

pochi semplici passi

inserisci i tuoi dati
Questionario completato
Grazie per aver richiesto un appuntamento senza impegno con un nostro Consulente del Credito e Assicurativo.

Hai inserito correttamente tutti i dati necessari e a breve riceverai una e-mail con un link da convalidare per inviare i tuoi dati.
Affiliato
Studio Trebaseleghe Srl
P.zza Principe di Piemonte, 2 35010 Trebaseleghe (PD)
P.zza Principe di Piemonte, 2 35010 Trebaseleghe (PD)
Zona: Trebaseleghe-Piombino Dese e frazioni
Mostra su mappa
Affiliato
Studio Trebaseleghe Srl
P.zza Principe di Piemonte, 2 35010 Trebaseleghe (PD)

2026 Tecnocasa Franchising S.p.A. - P. IVA 08365160152 - Via Monte Bianco 60/A 20089 Rozzano (MI). Ogni agenzia ha un proprio titolare ed è autonoma. Privacy policy | Policy utilizzo | Cookie policy